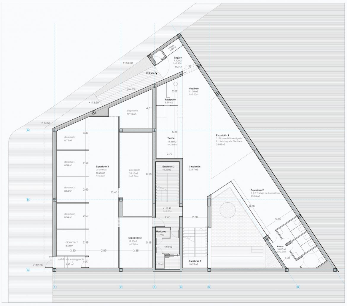
Centro de Interpretación Cádiz Prehistórico
Año: 2006-2010
Localización: Benalup-Casas Viejas, Cádiz.
Tipo: Construido. Edificio público.
Arquitectos: studio swes.
Sara Gutiérrez, Antonio Álvarez-Cienfuegos, Aurora Monge.
Fotografías: Jesús Granada.
PRIMER PREMIO en concurso
PREMIO TORRES CLAVÉ 2012










